Головнамапа сайтуЗворотній зв'язок
укрeng
Індиго М'юзік
Головна»Інформація»Статті»Теорія та практика»

Розташування гучномовців у кімнаті прямокутної форми

Інформація
Стаття розповість про те, наскільки важливим інструментом для отримання реалістичної звукової сцени є правильне взаємне розташування акустичних систем відносно одна одної, захисних конструкцій та зони прослуховування.

Для достижения высокого качества звуковоспроизведения, акустические характеристики комнаты для прослушивания необходимо приблизить к оптимальным значениям. Это достигается формированием "акустически правильной" геометрии помещения, а также с помощью специальной акустической отделки внутренних поверхностей стен и потолка. Не менее важным инструментом для получения реалистичной звуковой сцены является правильное взаимное расположение акустических систем относительно друг друга, ограждающих конструкций и зоны прослушивания. На основе принципа "золотого сечения" разработан стандартный подход к размещению громкоговорителей в комнате для прослушивания. Данная методика применима к любым корпусным акустическим системам, в случае их размещения в любом прямоугольном симметричном помещении с сопоставимыми размерами. В правильности такого подхода можно просто убедиться путем непосредственного прослушивания без использования специальной аппаратуры.

Установка акустических систем в замкнутом помещении приводит к возникновению интерференционных искажений, обусловленных взаимодействием прямого звука громкоговорителей и отражениями звуковых волн от ограждающих конструкций (так называемый SBIR-эффект (Speaker Boundary Interference Response) и "эффект гребенчатой фильтрации"). При этом, из сигнала, доходящего до зрителя, исчезает полезная информация в целом наборе информационно-значимых частотных полос, что сильно искажает тональный баланс исходной фонограммы. Частоты, на которых возникает нежелательное акустическое взаимодействие, пропорциональны расстоянию от громкоговорителей до стен помещения и в основном расположены в диапазоне 30?250 Гц. На звучание стереосистемы, расположенной в помещении прямоугольной формы, более всего влияют искажения, обусловленные взаимодействием (в порядке значимости):

  1. громкоговорителя с ближайшей боковой стеной;
  2. громкоговорителя с фронтальной стеной;
  3. громкоговорителя с дальней боковой стеной.

Рассмотрим варианты размещения акустических систем в комнатах различной формы и методы борьбы с нежелательными акустическими дефектами.

Комната прослушивания с продольной ориентацией

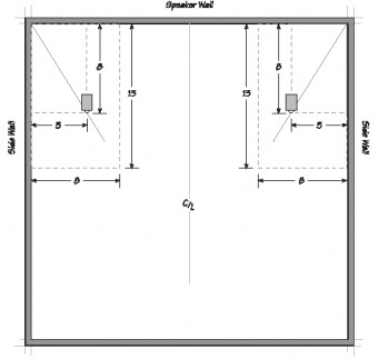
Использование принципа "золотого сечения", позволяет расположить громкоговорители в музыкальной комнате таким образом, чтобы рассогласовать частоты, на которых проявляются акустические дефекты и исключить или значительно уменьшить унисон вредных резонансов. Для того, чтобы правильно расположить корпусные акустические системы в прямоугольном симметричном помещении необходимо запомнить две простые формулы (Диаграмма А):

- расстояние от центра низкочастотного громкоговорителя до боковой стены:
Ширина помещения RW, (м) х 0,276
- расстояние от центра низкочастотного громкоговорителя до фронтальной стены:
Ширина помещения RW, (м) х 0,447

Диаграмма A
Диаграмма A

Диаграмма B
Диаграмма B

После того, как громкоговорители в помещении расставлены по принципу "золотого сечения", необходимо выбрать позицию слушателя в ближнем звуковом поле (Диаграмма В). Месторасположение слушателя определяется только расстоянием между центрами громкоговорителей и не связано с размерами самого помещения.

В общем случае оба громкоговорителя и голова слушателя должны быть расположены в вершинах равностороннего треугольника. Длина стороны треугольника должна быть равна расстоянию между громкоговорителями. Важность симметричного расположения акустических систем в маленькой комнате нельзя переоценить. Когда громкоговорители расположены согласно принципу "золотого сечения", необходимо их немного развернуть в сторону слушателя. Это можно сделать, полагаясь на слух. Обычно достаточно разворота громкоговорителей в пределах 5-6 градусов. Корпусные громкоговорители обычно требуют немного большего угла разворота, чем панельные.

Расположение слушателя в ближнем поле обеспечивает прекрасную стереопанораму. Этот прием, как правило, используется в студиях звукозаписи. Тем не менее, это не является универсальным рецептом для музыкальных комнат прослушивания. Очень часто удаление точки прослушивания от плоскости размещения акустических систем бывает более предпочтительным для создания реалистичной звуковой сцены.

Комната прослушивания в форме "золотого кубоида"

Комната прослушивания в форме "золотого кубоида" (Диаграмма С) имеет размеры:
h х 1,62h х 2,62h,
где h - это высота помещения.

Соотношения между линейными размерами такой комнаты соответствуют принципу "золотого сечения" (Диаграмма D) или иррациональной последовательности чисел Фибоначчи (Диаграмма Е).

Золотое сечение (золотая пропорция, гармоническое деление) - эту пропорцию принято обозначать греческой буквой φ и она равна:
φ = (1 + √5)/2 = 1, 61803398874989484…

Числа Фибоначчи - последовательность целых чисел Fn, заданная с помощью рекуррентного соотношения: F0 = 0, F1 = 1, Fn+1 = Fn + Fn-1 Последовательность чисел Фибоначчи начинается так:
0, 1, 1, 2, 3, 5, 8, 13, 21, 34, 55, 89, 144, 233

С точки зрения акустики комната в форме "золотого кубоида" обладает одним замечательным свойством. Так как основные резонансные частоты помещения отличаются друг от друга в соотношении "золотого сечения" (пропорционально размерам комнаты), то взаимодействие стоячих волн (всех типов!!!) не увеличивает, а, наоборот, частично компенсирует неравномерность звукового поля. Это приводит к более естественному восприятию музыкального материала на низких частотах, что является большой проблемой в помещениях небольшого объёма (менее 100 м3).

Диаграмма C
Диаграмма C

Для вычисления месторасположения громкоговорителей в музыкальной комнате, выполненной в форме "золотого кубоида", можно воспользоваться методом отношений (Диаграмма D) или числами Фибоначчи (Диаграмма Е). Оба способа вычислений приводят к одинаковому результату.

Диаграмма D
Диаграмма D

Диаграмма E
Диаграмма E


Комната прослушивания с поперечной ориентацией

Если акустические системы в прямоугольной комнате прослушивания расположены вдоль длинной стены, во фронтальных углах помещения необходимо начертить прямоугольники в пропорции "золотого сечения". Громкоговорители рекомендуется размещать в любом месте вдоль диагональной линии, проходящей через внешние фронтальные углы комнаты и диагональные вершины прямоугольников (Диаграмма F).

Диаграмма F
Диаграмма F

Диаграмма G
Диаграмма G

Если Вам не повезло и у вас квадратная комната прослушивания, так же, как и в предыдущем случае, во фронтальных углах комнаты нужно начертить "золотые" прямоугольники и провести через них диагональные линии (Диаграмма G). Громкоговорители необходимо располагать вдоль этих линий.

Комната прослушивания типа "золотой трапагон"

"Золотой кубоид" (Диаграмма C) это наиболее желательная форма для прямоугольной комнаты прослушивания. Тем не менее, если существует возможность спроектировать и построить помещение любой формы, то намного более предпочтительным для наших целей будет помещение в форме "золотого трапагона" (Golden Trapagon).

"Золотой трапагон" (Диаграмма Н) образуется постепенным увеличением площади поперечного сечения помещения от фронтальной до тыловой стены по закону "золотого сечения".

Преимущество помещения, имеющего форму "золотого трапагона" в том, что такая форма исключает проблему параллельных стен и, связанных с ней, ярко выраженных резонансов помещения. Соотношение высоты и ширины такого помещения в любой точке - это "золотое сечение". Площадь поперечного сечения тыловой стены в 1,618 раз больше фронтальной. Отношение ширины или высоты фронтальной стены к ширине или высоте тыловой стены составляет 1,272, 1,272 - это корень квадратный из 1,618 или "золотого сечения".

Диаграмма H
Диаграмма H

Выполнение этих несложных рекомендаций, основанных на применении гармонического принципа "золотого сечения", позволяет без каких бы то ни было затрат значительно улучшить звучание звуковоспроизводящей аппаратуры в любом симметричном помещении прямоугольной формы. Однако, необходимо отметить, что вышеизложенные советы не являются панацеей от всех акустических несчастий, а касаются только коррекции дефектов, связанных, прежде всего, с образованием стоячих волн в помещении. Но это та база, основываясь на которой можно выстроить прекрасно звучащую стереосистему, дарящую радость и удовольствие своему владельцу.

Статья взята с сайта www.acoustic.ua. Автор Андрей Смирнов.

¬се статьи раздела ЂТеорія та практикаї
Наш анонс
Унікальний конденсаторний широкомембранний мікрофон зі спрямованістю, що може перемикатися.
Neumann TLM 127
Унікальний конденсаторний широкомембранний мікрофон зі спрямованістю, що може перемикатися.
© 2005–2025 Компанія «Індиго М'юзік»